02
05
03
01
04
06
07
08
09
10O
11O
12O
13O
14O
PROGETTISTI: DELISABATINI architetti+ Ing. Paolo Forte + Ing. Francesco Veronese
ANNO: 2025
DESCRIZIONE: Nuova sede della Prefettura ad Oristano
LOCATION: ORISTANO
COMMITTENTE: Direzione Regionale Sardegna - Agenzia del Demanio
COLLABORATORE: 


DOWNLOAD:

PUBBLICAZIONI:

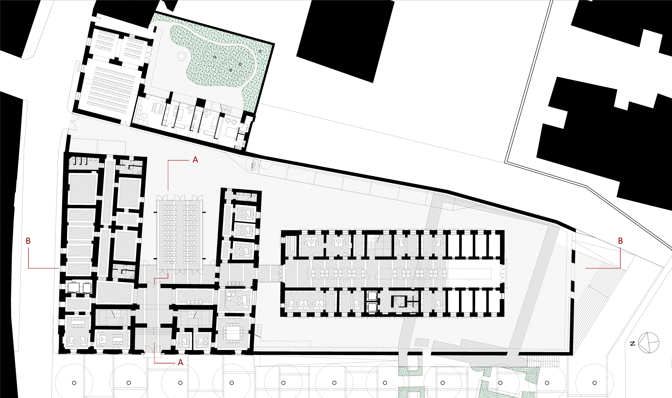
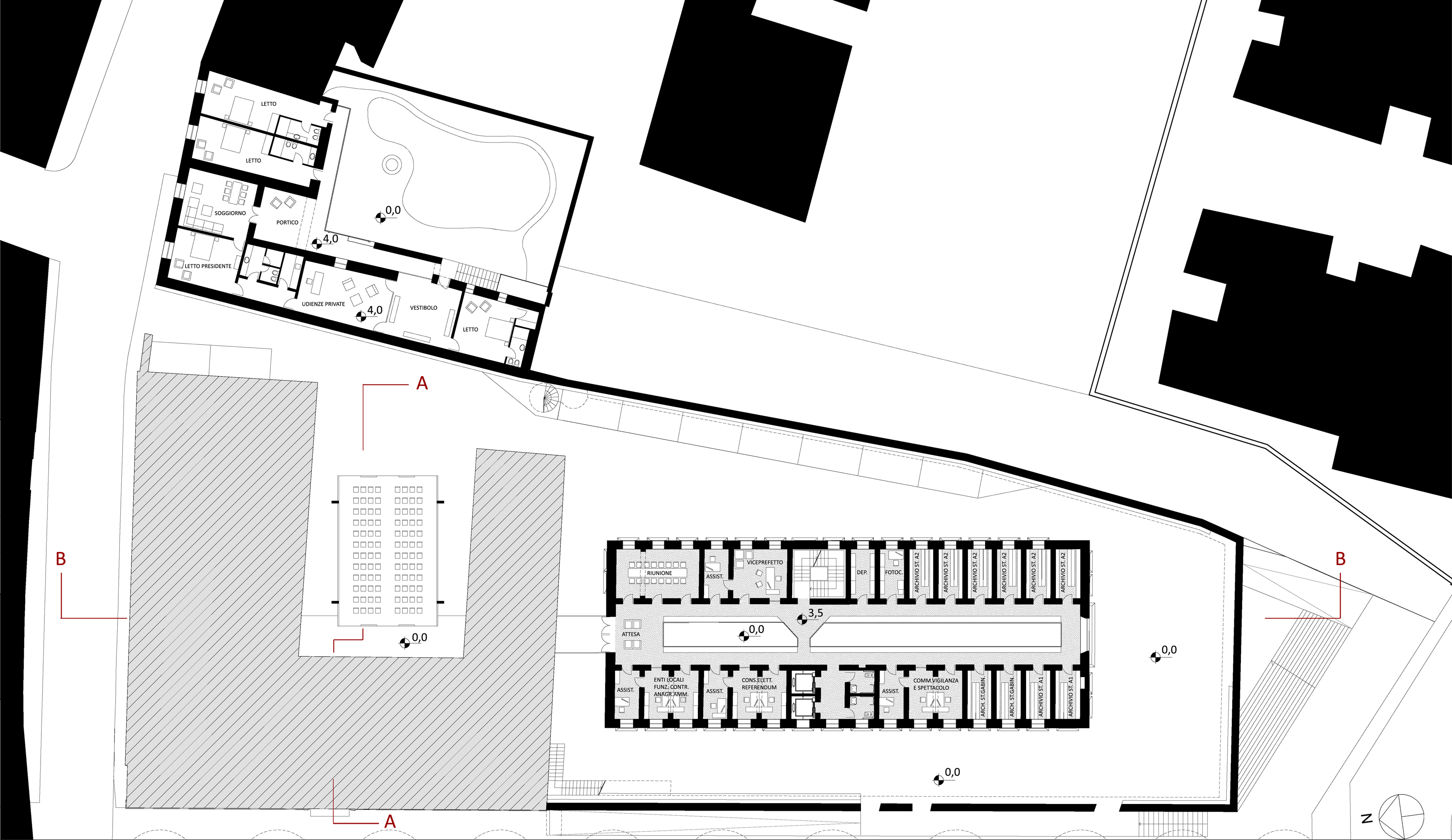
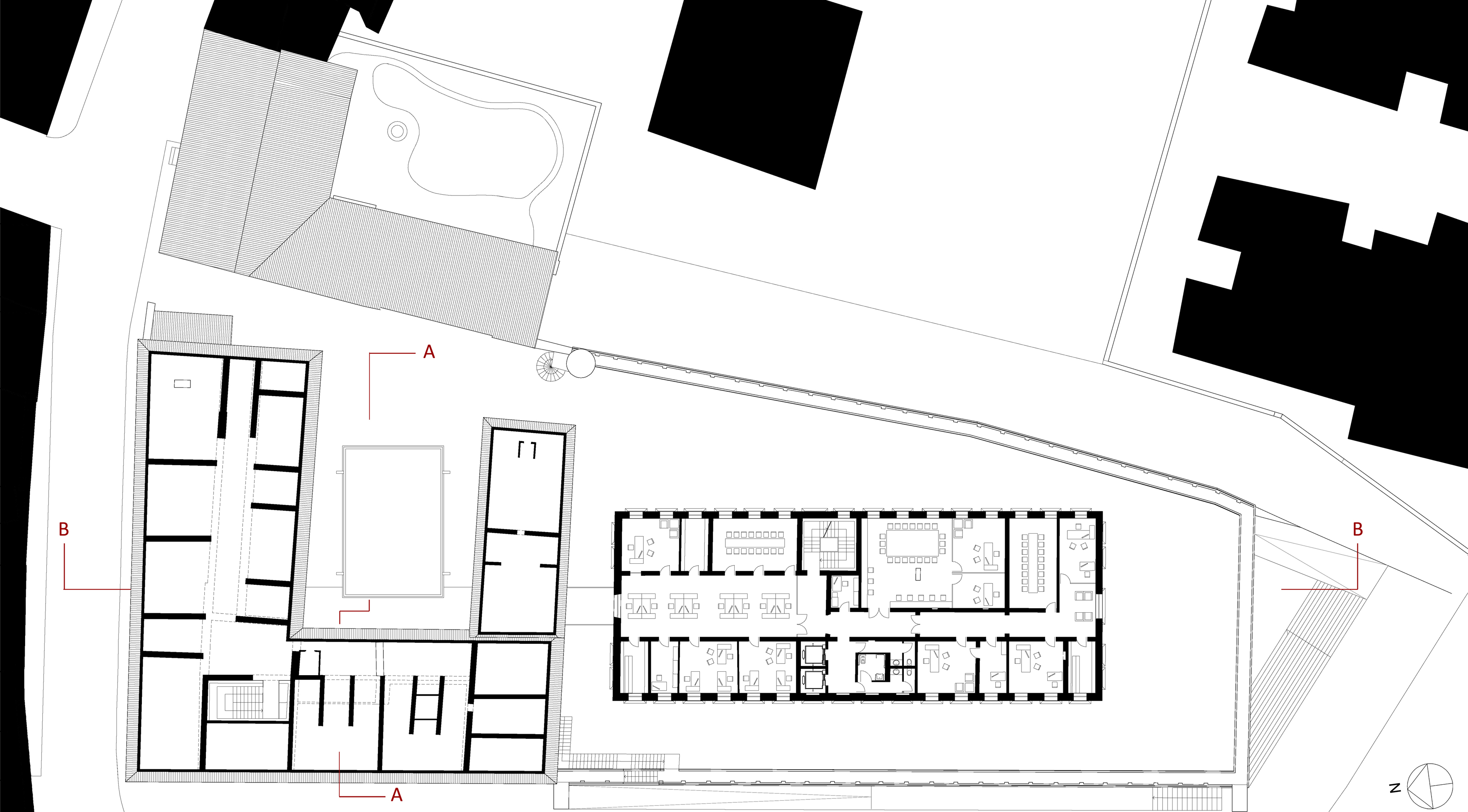
Il complesso di edifici che dovrà ospitare la sede della prefettura si presenta oggi in uno stato di degrado e di obsolescenza dovuto anche alle continue trasformazioni intervenute nei secoli.
Il progetto prevede il restauro degli edifici, l’inserimento di pochi nuovi elementi riconoscibili in grado di garantire l’adeguamento e la funzionalità della struttura, il raggiungimento di un nuovo senso spaziale e funzionale al complesso.
Innanzitutto si prevede di liberare i tre edifici originari (l’ala detentiva, il palazzo storico e la casa vecchia), dai corpi edilizi aggiunti nel tempo, demolendo tutti gli interventi e le innumerevoli superfetazioni che ovunque incrostano i fabbricati internamente ed esternamente, svilendo l’originaria spazialità e dignità degli edifici originari, alcuni secolari, al fine di recuperare la piena leggibilità dell’individualità dei tre edifici e della muraglia che li chiude.
Liberati gli edifici, l’intervento si sforza di organizzare le numerose e complesse funzioni della prefettura, con il minimo intervento e nel rispetto della conformazione degli edifici, spesso adattando ambienti angusti e inadeguati. Gli interventi sulle murature portanti sono ridotti al minimo e solo se strettamente necessari; si è cercato di organizzare e adattare le funzioni con gli spazi più compatibili.
Il progetto considera la preesistenza degli edifici come un insieme trattato in modo unitario, caratterizzato da solide e nude murature sulle quali si stendono superfici di intonaco materico, esaltando l’aspetto massivo e la spazialità avvolgente degli antichi ambienti voltati. Pavimentazioni in pietra marcano il carattere solenne dell’edificio. Solo elementi architettonici in pietra affiorano sporadicamente dal restauro. L’intervento aggiunge solo pochi nuovi elementi riconoscibili, essenziali per il funzionamento degli edifici. Sono le nuove scale e gli ascensori che consentono il funzionamento efficiente degli edifici e la nuova sala dei 100 sindaci.
Questi elementi si distinguono per il materiale che li rende riconoscibili, il ferro delle lamiere piegate delle scale che si avvitano entro i vani murari, e il ferro della copertura del box in vetro che caratterizza la sala dei 100 sindaci, all’interno della corte. Questi nuovi elementi si innervano lungo un asse di collegamento fisico e visivo che unisce spazialmente e funzionalmente gli edifici, completando quello in parte già esistente nell’ala detentiva, attraverso l’apertura di un varco nell’ala del palazzo storico e il collegamento con la corte.
Questo asse si conforma in uno spazio continuo, interno ed esterno che dalla nuova testata sud di accesso su via Solferino, caratterizzata dalla scalinata, lega lo spazio esterno del cortile a quello a tripla altezza dell’ala detentiva, lo spazio della memoria, le sale di attesa, con il cortile del palazzo storico, la nuova sala dei sindaci (sala 100), sino all’atrio della prefettura, nuovamente connesso con la corte.
Anche le pavimentazioni in pietra concorrono a definire questo asse. Ricorsi di fasce più scure sottolineano l’asse esteso all’atrio del palazzo ed e la sala dei sindaci, mentre fasce perimetrali sottolineano la spazialità delle singole sale recuperate del palazzo storico. Prive di connotazione sono invece le pavimentazioni degli uffici nell’ala detentiva.
Lo spazio esterno, oggi claustrofobico e inospitale, circondato da un alto muro che lo separa dalla città, frazionato al proprio interno in ulteriori angusti anditi da alti muri, viene recuperato e restituito alla città. Questo spazio, riunificato, reso continuo, accessibile, con aperture che lo connettono opprimente attuale in un luogo appartato e meditativo. La corte, circondata da avvolgenti muri di verde, pavimentazioni di ciottoli, sedute e piante, si presenta come un luogo tranquillo e gradevole dove sostare. L’attuale cammino di ronda sommitale che lo avvolge, è reso accessibile da due nuove comode scale accessibili dalla corte, aggiungendo una nota di interesse alla fruizione di questo spazio. Lungo il suo percorso due nuovi affacci proiettano il visitatore in punti di vista privilegiati, alti sulla piazza e il panorama cittadino. L’apertura di bucature verso la piazza porterebbe ad un miglioramento della fruizione e un arricchimento spaziale della stessa piazza.
Il progetto, oltre il confine del muro, sulla piazza, propone due elementi di completamento, reversibili e sovrapposti alla pavimentazione della piazza appena realizzata, senza alcuna demolizione. Essi favoriscono, a nostro avviso, l’integrazione tra il progetto e la città.
Il primo è una rampa, necessaria per superare il dislivello esistente tra interno ed esterno, il secondo è una installazione, un elemento di arredo urbano (fioriere e sedute) che si conforma come una sagoma in rilievo che rievoca, nella giusta posizione dei rilievi archeologici, i tracciati murari della demolita porta e del castello.