01
02
03
04
05
06
07
08
09
10
11
12
13
14
15
16
17
18
19
PROGETTISTI: DELISABATINI architetti  +  Jiho architects
ANNO: 2018
DESCRIZIONE: Creative Music & Sound Center for Youth, International Competition
LOCATION: SEOUL, SOUTH KOREA
COMMITTENTE: Città di Seoul
COLLABORATORE: Arch. Luca Lanciotti
CONSULENTE: Arch. Rocco Smaldone


DOWNLOAD:

PUBBLICAZIONI:


Il progetto si pone come obiettivo la realizzazione di un edificio attrattivo per i cittadini e aperto, anche visivamente, alla città.  La visibilità e la trasparenza caratterizzano questo progetto.
Lo spazio si conforma rappresentando ed esaltando l’atmosfera giovanile che lo pervade, riverberando echi del loro vivace mondo sonoro, favorendo la formazione di un ambiente stimolante, fucina di ingegni. 
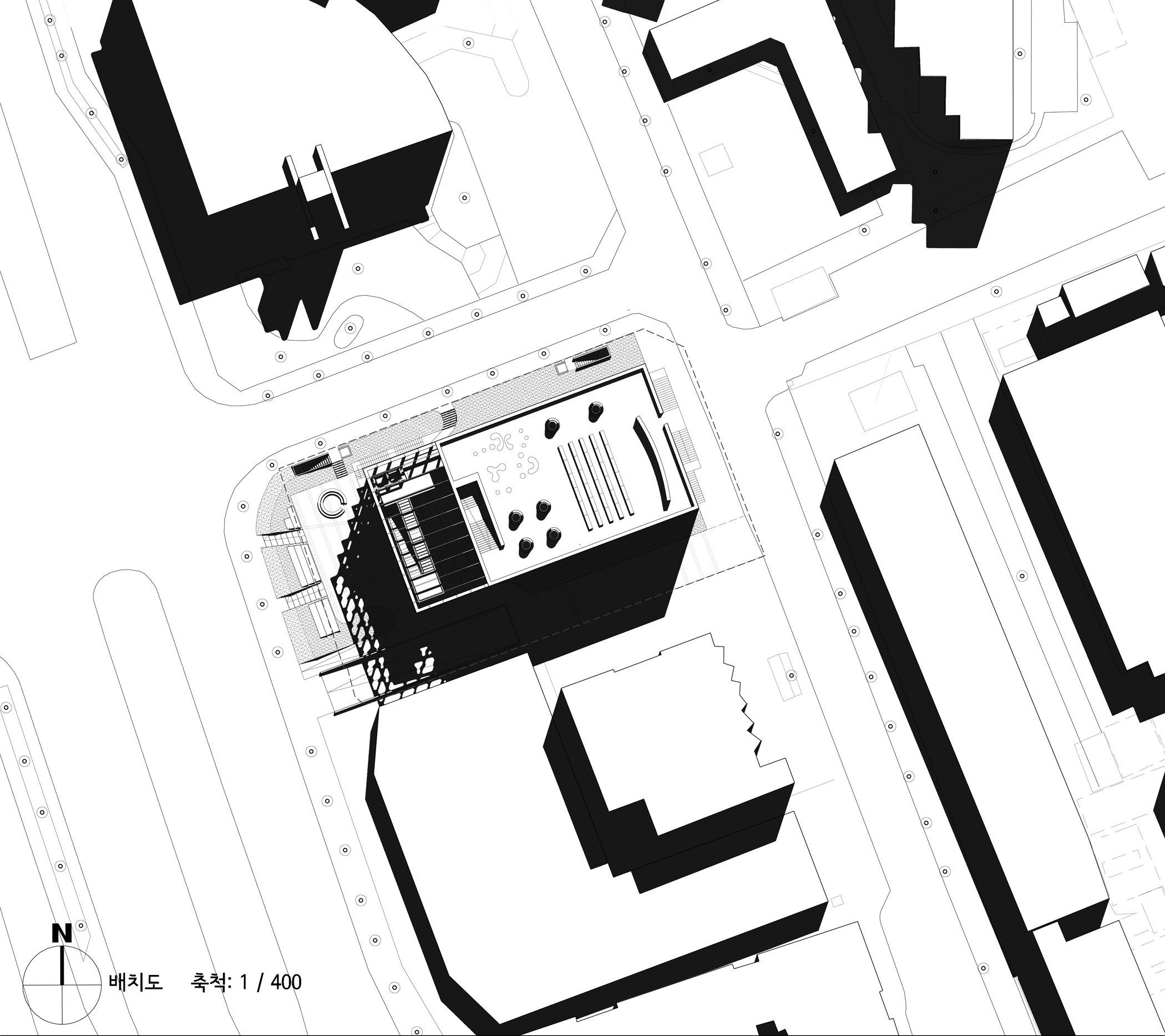
Il progetto è concepito come un parallelepipedo, in parte solido in parte trasparente, arretrato rispetto alla strada principale. Questa area, prospicente l’edificio, è una tranquilla e accogliente zona di rispetto, protetta dal verde e dotata di sedute che si connota come area di sosta e intrattenimento aperta alla città. Essa si sviluppa in continuità anche visiva con l’atrio, favorendo l’accesso all’edificio e indirizzando il visitatore verso l’interno. 
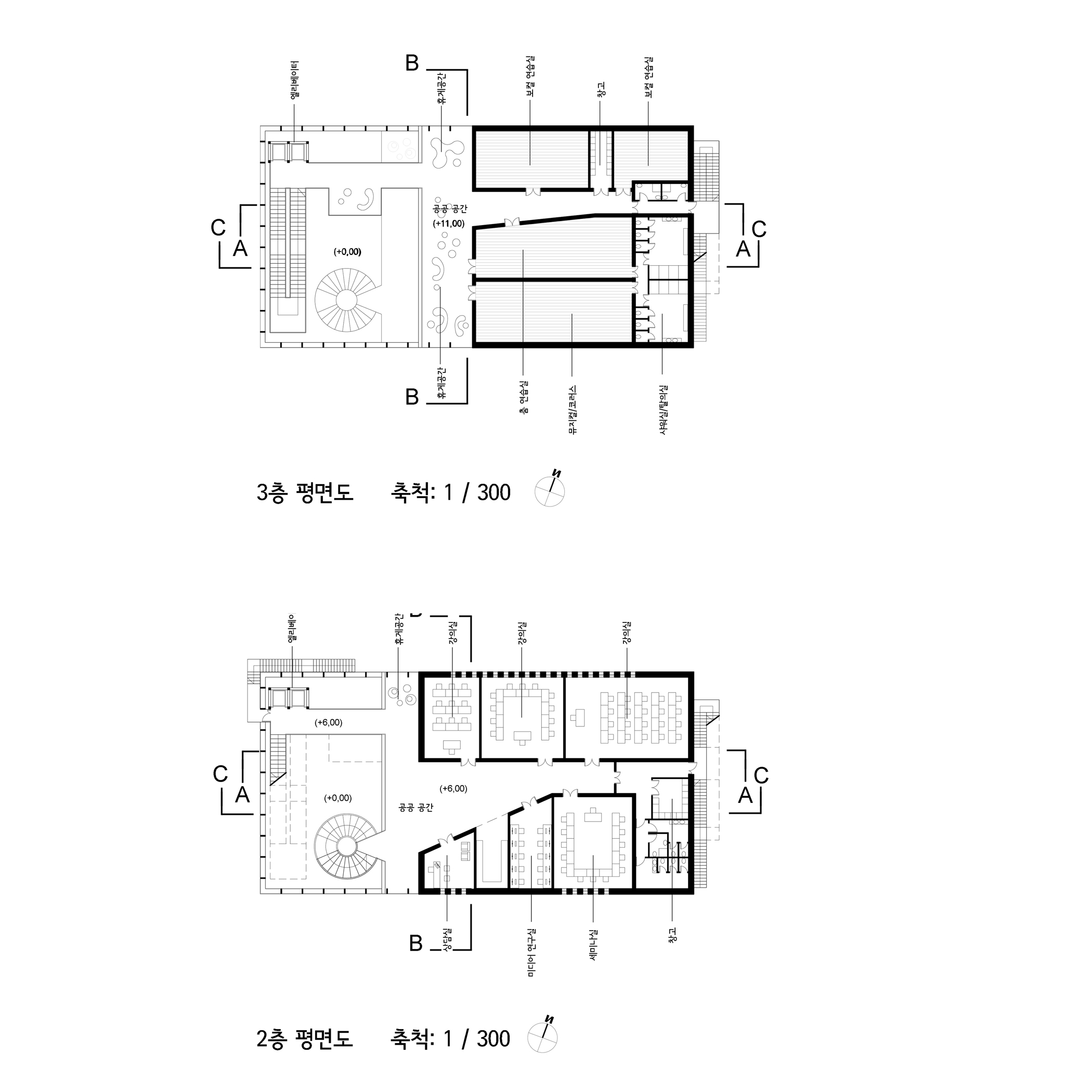
La parte solida condensa tutte le funzioni e attività della scuola e si sviluppa in ambienti separati e protetti, su diversi piani, fino a costituire un solido compatto verso l’esterno; essa si ammorsa invece, con un andamento frastagliato, al complementare volume trasparente.
La parte trasparente, rivolta verso la strada principale, è un grande volume vetrato, un grande spazio a tutta altezza che si offre alla vista della città. 
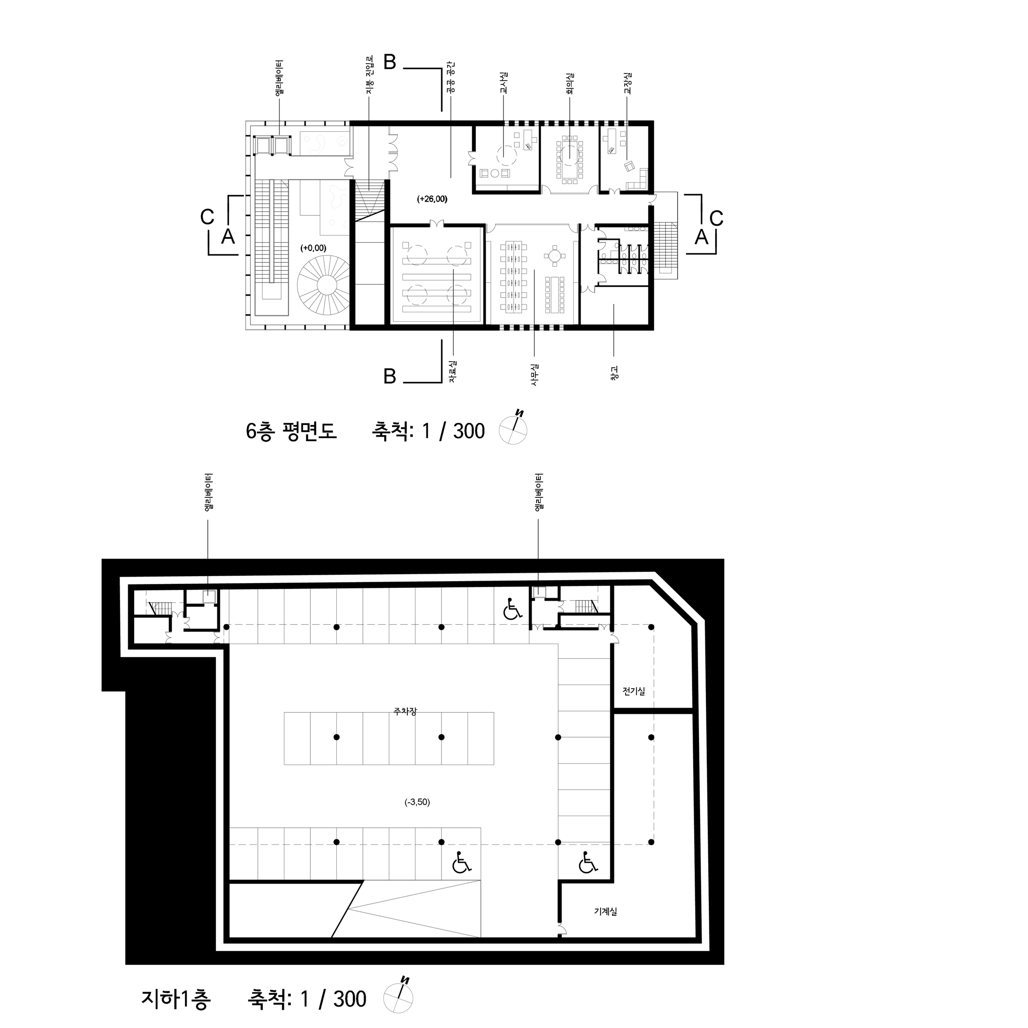
La continuità tra interno ed esterno è totale. Espulsi dalla parte solida, le scale e gli ascensori si librano/muovono liberi nell’alto spazio del grande atrio; la scala diventa una aerea e comoda passeggiata a bassa pendenza che risale nel vuoto, collegando tutti i piani sino a raggiungere il tetto giardino dove, una superficie estesa e attrezzata, si presta ad ospitare avvenimenti legati alla scuola ma eventualmente anche all’esterno, senza tuttavia destare intralcio alle attività didattiche.    Attraversato dai percorsi verticali e da grandi balconate di soggiorno che si protendono verso il vuoto, è il luogo che maggiormente connota il progetto. È un alto spazio, vivacizzato dai ragazzi, dal caffè, dal verde e dagli alberi, dove organizzare eventi e dove sostare. 
Da questo grande spazio, ampi buchi strombati e colorati affondano nella parte solida, nella massa scura del volume opaco, dando accesso a tutti gli ambienti della scuola. Colori diversi individuano diversi ambiti funzionali.
Il Black Box, al piano terra, beneficia di un accesso immediato dall’esterno attraverso il grande atrio e, insieme al caffè, offre alla città un’ulteriore valido spazio per lo spettacolo, senza interferire, eventualmente, con le attività della scuola che si sviluppano ai piani superiori.
Edificio pensato basso consumo: Il grande atrio con vetrate tecnologiche, funziona come serra solare nei mesi invernali, inoltre i vetri fotovoltaici silicio amorfo assicurano in ogni stagione produzione di energia elettrica e controllo solare.