01-DX
02-SX
04-SX
05DX
06-SX
07DX
08-SX
09-DX
10-SX
11-DX
ANTE OP
PROGETTISTI: DELISABATINI architetti, Palmiero
ANNO: 2005
DESCRIZIONE: Ampliamento struttura Sanitaria
LOCATION: ROMA
COMMITTENTE: ASL Roma
COLLABORATORE: G.B. Manai


DOWNLOAD:

PUBBLICAZIONI:


L’edificio, parte di un complesso più esteso, una ex scuola degli anni 80 realizzata interamente con strutture prefabbricate, è stato recentemente riconvertito in uffici. 
L’ala dell’edificio oggetto dell’intervento è caratterizzata, al suo interno, dal grande vuoto della ex palestra scolastica, mentre, all’esterno, si presenta come un volume parallelepipedo squadrato, caratterizzato da una finestra a nastro continua che taglia interamente le facciate sui tre lati, staccando e sospendendo visivamente la lastra della copertura.
L’intervento ha consentito, nonostante il volume piuttosto ridotto e l’altezza originaria inferiore ai due piani, di sistemare all’interno dello stesso ampliamento le tre funzioni richieste dalla committenza, totalmente distinte negli accessi e indipendenti nel funzionamento. 
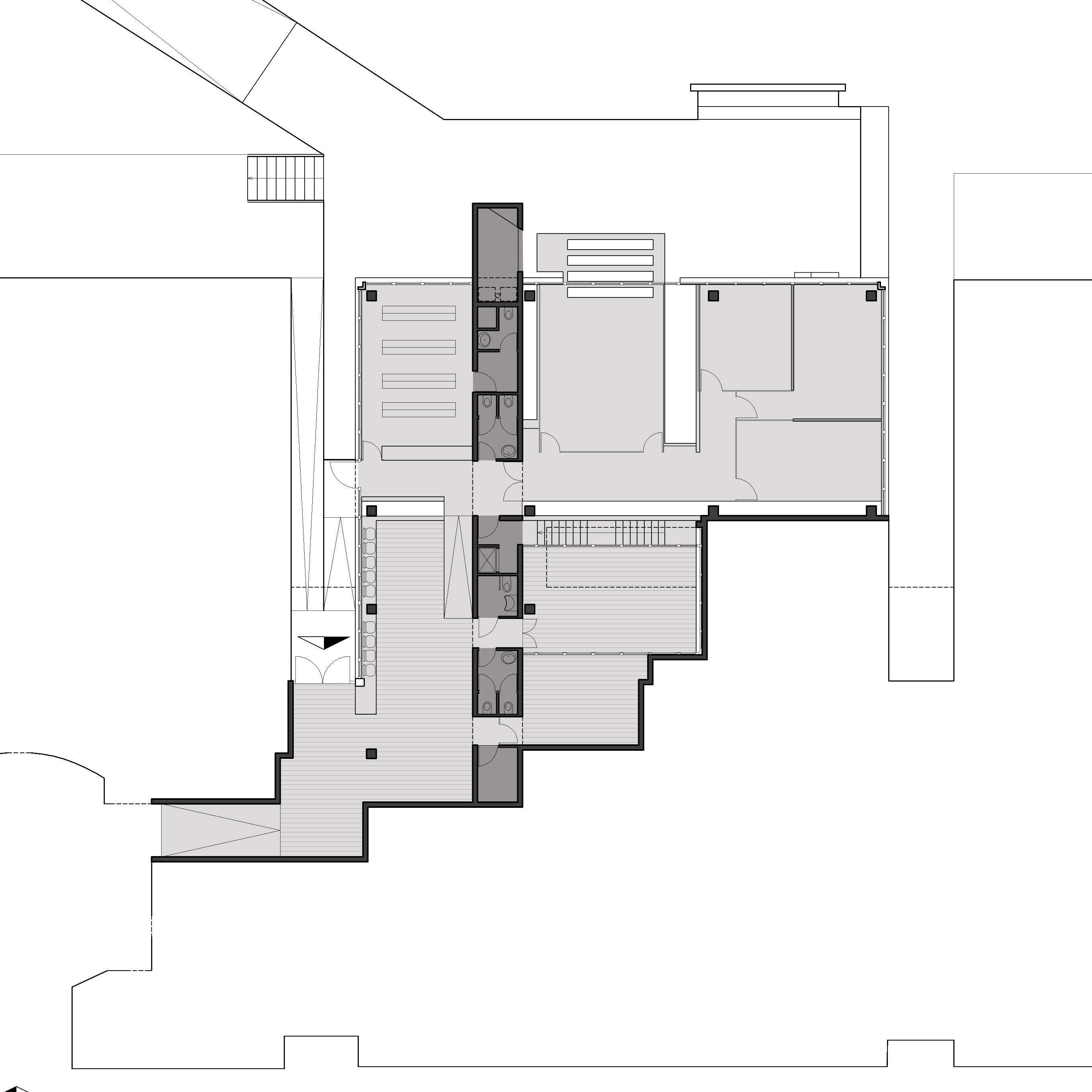
L’intervento, dunque, agisce sull’esistente, all’interno di un involucro, per scelta conservato pressoché intatto, dalle caratteristiche spiccatamente industriali, che gli derivano dalla tecnologia prefabbricata impiegata e, tranne che per alcuni modesti ma figurativamente incisivi interventi di taglio delle superfici della facciata, quasi non si manifesta all’esterno, ponendosi come obiettivo il mantenimento, in qualche misura, almeno nella memoria, dell’originario grande spazio a tutta altezza della palestra che caratterizzava quest’ala dell’edificio; l’involucro, interamente svuotato del suo contenuto e scavato di circa un metro al suo interno, (tanto da consentire la realizzazione di due comodi piani), viene ricolonizzato e riconformato secondo una logica spaziale che rifiuta il frazionamento visivo e la chiusura, prediligendo invece la continuità spaziale e visiva, attraverso una composizione chiara , netta e inequivocabile, di soli due elementi strutturali e funzionali assieme, il setto (verticale) e la piastra (orizzontale); questi, inseriti all’interno dell’esistente ridotto ai suoi tre elementi costitutivi essenziali: (lastra di copertura poggiante su pilastri a tutta altezza e chiusura esterna cieca in pannelli prefabbricati), conferiscono nuova dignità all’insieme generando uno spazio ricco e articolato. 
Il preesistente edificio svuotato diviene contenitore del nuovo contenuto; questo si inserisce all’interno dell’involucro affiancando le nuove strutture alle esistenti.
 Il setto, muro cavo, elemento lineare strutturale e funzionale assieme, ordinatore della composizione, introduce una direzione forte attorno alla quale si addensa tutta la materia delle funzioni più minute e di servizio; unica struttura opaca verticale, senza toccare la lastra di copertura sotto la quale corre, attraversa e organizza su due livelli l’intero spazio interno, indirizza i percorsi, fino a rompere l’involucro, si affaccia con la sua testata plastica all’esterno. 
La piastra è il secondo elemento della composizione, incastrata al setto, non si salda mai alla struttura esistente; superficie che si libra a mezz’aria nel vuoto della palestra, sospesa su una struttura di pilastri di acciaio accoppiati, consente la realizzazione del secondo piano interno; essa conforma la sua materia monolitica e plastica di cemento armato muovendosi liberamente nello spazio, curvandosi in parapetto o ritagliandosi in asole secondo le esigenze degli spazi che genera. I tagli inferti e le asole generate sulla superficie della piastra, rievocando la memoria e la percezione dell’originario spazio della palestra, garantiscono permeabilità visiva tra il sotto e il sopra, fondamentali sfondamenti ottici e doppie altezze, tali da risolvere anche il problema igienico, dell’aria e della luce al piano inferiore, addirittura, aprendo alla vista, inaspettati scorci di cielo. 
Un’attenzione particolare è stata dedicata alla luce artificiale, utilizzata per sottolineare la continuità spaziale descritta. La lastra di copertura e la piastra sono punteggiate da una costellazione di luci puntiformi disposte secondo una maglia ordinatrice modulare. Il setto dei servizi, è rafforzato nella sua direzione dalla fascia luminosa superiore, garantendo una illuminazione diffusa a tutti gli ambienti attraversati. Se infine, la testata del setto dei servizi emerge come elemento plastico anche nell’oscurità della notte, anche i quattro grandi pilastri esistenti all’interno della lunga asola formata dalla piastra sono evidenziati da una illuminazione proveniente da terra.
L’edificio è circondato da un’area sistemata a verde con morbidi dossi erbosi che si innalzano tra i parcheggi di pertinenza; un ampio piano inclinato incide il suolo inquadrando secondo una veduta trasversale la testata plastica del setto dei servizi, consentendo l’accesso alla quota inferiore degli uffici.