PROJECT: DELISABATINI architetti
YEAR: 2023
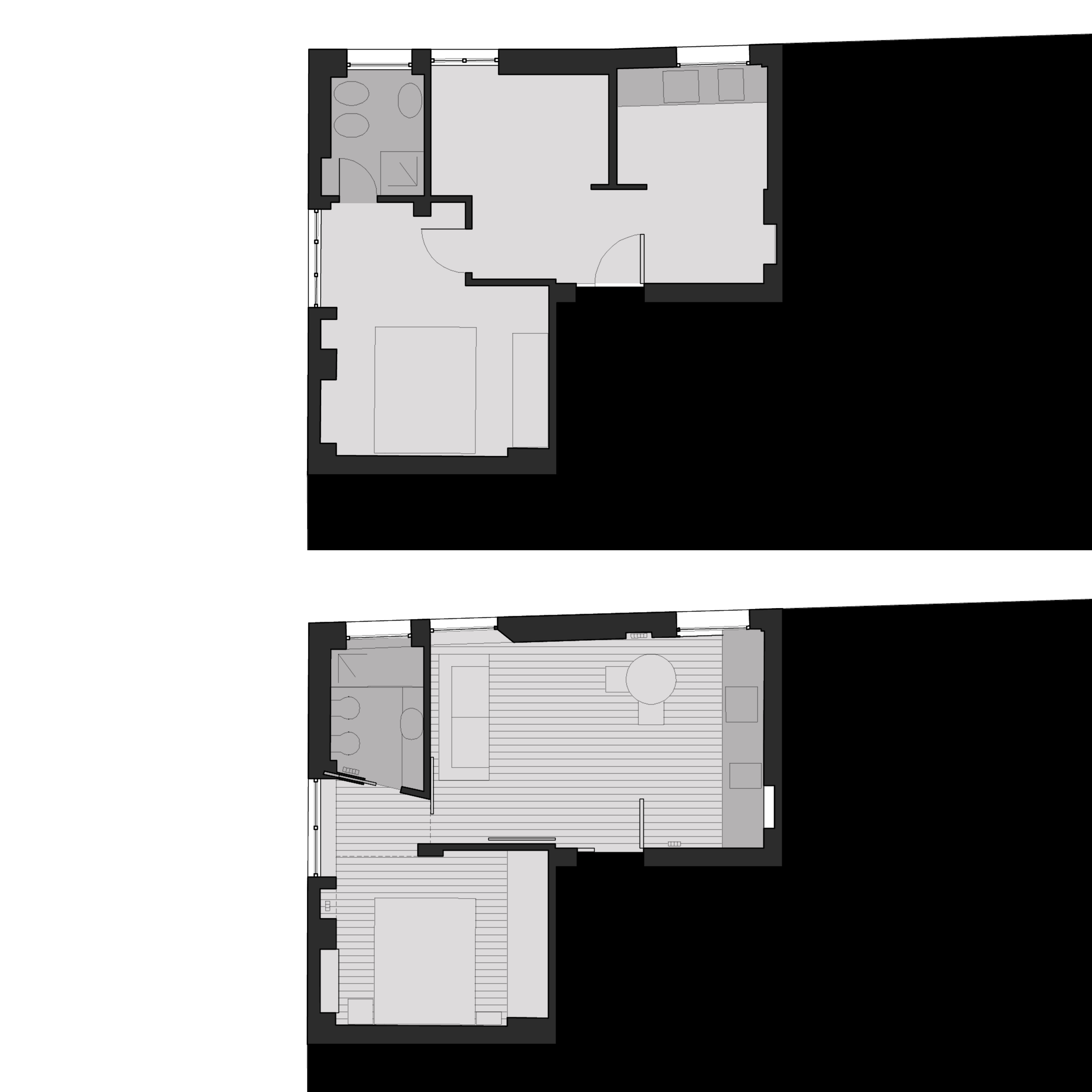
NAME: Guest House
LOCATION: ROME
CLIENT: private
COLLABORATOR:
DOWNLOAD:
PUBLICATIONS:
PROJECT: DELISABATINI architetti
YEAR: 2023
NAME: Guest House
LOCATION: ROME
CLIENT: private
COLLABORATOR:
DOWNLOAD:
PUBLICATIONS: